Features:
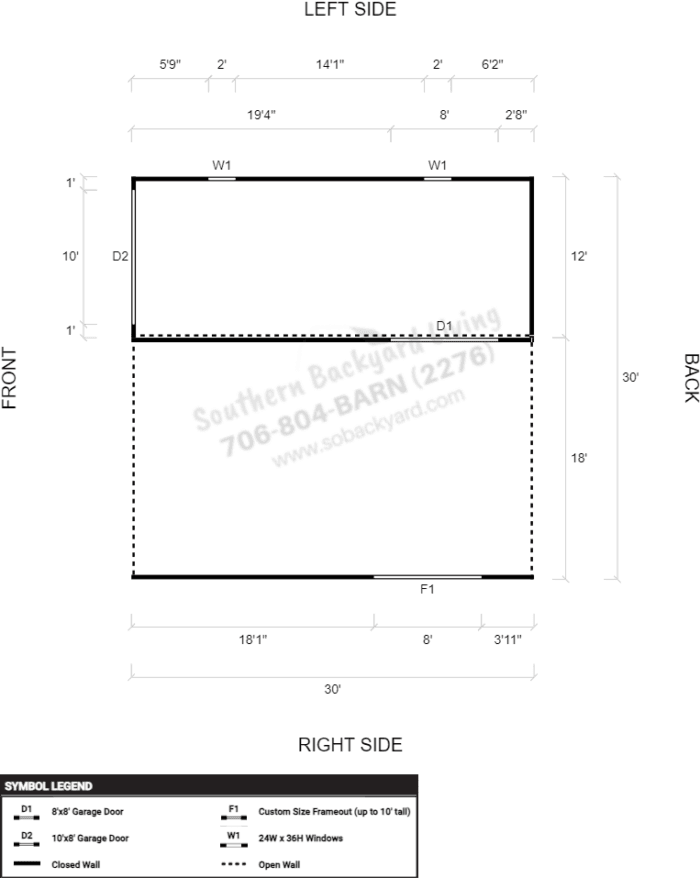
18x30x13 RV/Camper area with front gable and extended back gable
8×10 Frame out
10×8 Roll up door with header seal
8×8 Roll up door with header seal
2 2×3 Windows
12x30x9 Enclosed garage with moisture barrier roof protection
Colored Screws
Welded truss upgrade
Open this custom design here: CLICK HERE










